sale
土地・分譲・仲介情報

【佐伯区】八幡4丁目
| 価格 | 4,680万円(税込) | ||
|---|---|---|---|
| エリア | 佐伯区八幡 | 所在地 | 広島市佐伯区八幡四丁目53番12付近 |
| 校区 | 広島市立八幡小学校 広島市立城山中学校 |
交通 | 広電バス「寺地」バス停まで徒歩3分 |
| Point | 八幡東小学校まで徒歩4分。 近隣には公園も多く、四季の移ろいを感じながらのびのびと子育てができる環境です。 |
||
| お問い合わせ | 本ページまたはTEL:082-543-2111にてお問い合わせください | ||
モデルハウスの内装は、アイレストホームの商品「エアリード」仕様になっています。
床材は、すべて国産無垢材を使用し、壁天井には、自然素材からなる幻の漆喰を採用しています。
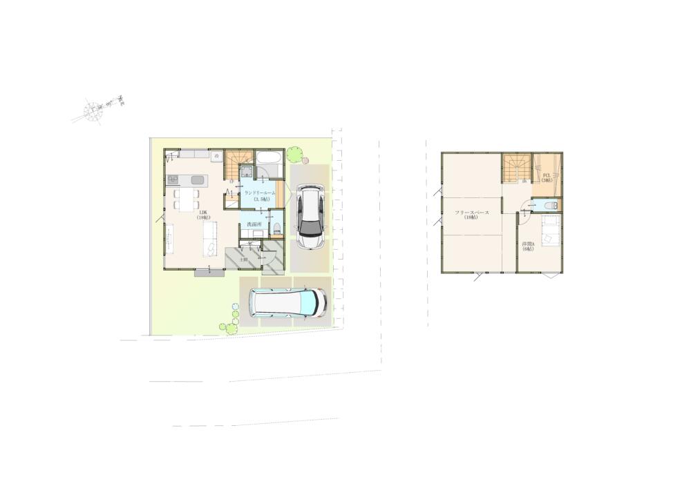
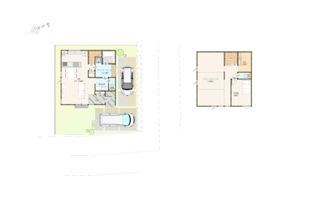
■2階フリースペースは子供の成長とともに可変していく空間に

▶2LDK+WIC
・駐車2台可能
・土間玄関からリビングに広がる空間
・キッチン⇀ランドリールーム⇀洗面⇀リビングの回遊動線
・2階の18帖リビングは住む方のライフプランに合わせてフレキシブルプランあり
・樹脂サッシ+トリプルガラス
・制震装置MIRAIE装備
・太陽光パネル(5.28kW)
光が差し込む広いLDKを中心に、家族の気配を感じられる間取りを実現しました。
1階には18帖の広々LDK。キッチン横に配した3.5帖のランドリールーム。脱ぐ・洗う・干すが1箇所で完結し、家事時間を大幅に短縮します。
注目は2階の18帖におよぶフリースペース。お子様の成長に合わせて仕切ることも可能。今の暮らしも、10年後の暮らしも、心地よくサポートする住まいです。
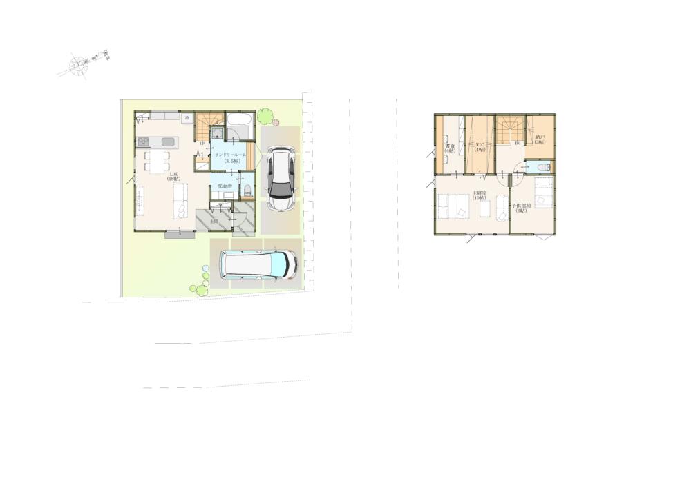
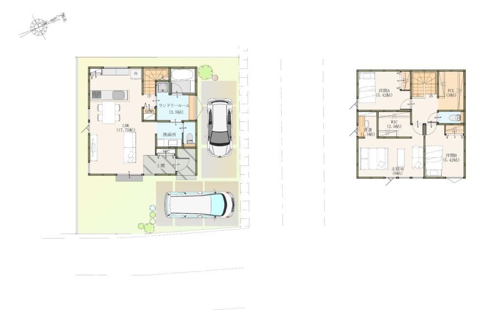
■プラン2 「整う暮らし」と「自分時間」の両立可能な間取り

▶2LDK+書斎(4帖)+WIC
「整う暮らし」と「自分時間」の両立可能な間取り。
2階には、独立した4帖の書斎を完備しました。 書斎は単なるデスクスペースではなく、一人の時間を深く愉しむための特別な場所。オンライン会議や趣味に集中できる環境を標準で備えています。
さらに、4帖のWICや3帖の納戸など、家中がスッキリ片付く圧倒的な収納力も魅力。
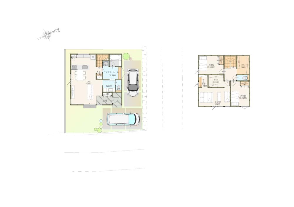
■プラン3 共働き・こだわり派向け

▶3LDK+書斎(2)+FCL
家族と一緒にいる時間は大切。でも、自分だけの「集中できる場所」も譲れない。そんな願いを形にしました。
2階には3つの個室を配置し、それぞれに書斎(2.5帖)と書斎(2帖)を隣接。リモートワークはもちろん、読書や手芸、ゲームなど、リビングとは切り離されたプライベートな時間をしっかり確保できます。
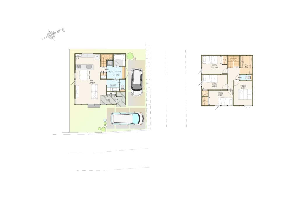
■プラン4 暮らしが整う【家事ラク×収納充実】な間取り

▶3LDK+書斎+WIC+FCL
一日の終わりを過ごす主寝室に、2.5帖のウォークスルーWICとプライベートデスク(書斎)を贅沢に配置しました。
着替えから趣味、ちょっとした仕事まで、寝室から一歩も出ずに完結できる「おこもり感」のある設計です。
2階廊下には家族全員で使える3帖のファミリークローゼットを設置。
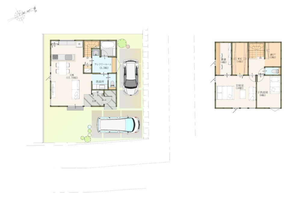
■プラン5 4LDK 子育て世代向け

▶4LDK+FCL
限られた敷地を最大限に活かし、4つの個室と大容量のウォークインクローゼットを実現しました。
子供部屋やテレワークルームなど、家族の成長や変化に柔軟に対応可能です。
廊下から使える大型FCLを完備しており、部屋を細かく仕切っても収納力は妥協しない、賢い空間活用が光るプランです。
◆間取りはそれぞれのライフプランにあわせてご相談可能です。
■UA値0.38 断熱等級6 / C値0.09

■樹脂サッシ+トリプルガラス

Low-Eガラスとは、ガラスの片面に「Low-E膜」と呼ばれる特殊な金属膜をコーティングしたガラスで、「低放射」を意味します。
この膜が夏の強い日差しや冬の室内の暖房熱を反射・吸収するため、高い断熱・遮熱効果を発揮し、一年中部屋を快適に保ちます。
■制震ダンパーMIRAIE

ゴムで揺れを吸収する制震装置MIRAIE(ミライエ)
高減衰ゴムは地震の揺れで発生する運動エネルギーを瞬時に吸収し「熱エネルギー」として発散します。その技術は高層ビルや橋梁など幅広い分野で実用化されています。
またMIRAIEの制震技術は、震度7を観測した熊本地震で導入された住宅の倒壊・半壊被害ゼロを実証しました。
強い揺れだけでなく、繰り返す余震による建物の揺れ幅を低減し、家本体を倒壊から守ります。
■太陽光パネル(5.28kW)搭載

※画像はイメージです
【区画図】

広電バス「寺地」まで徒歩3分・八幡小学校まで徒歩4分の好立地

| 土地面積 | 132.11㎡(39.96坪) |
||
|---|---|---|---|
| 地目 | 宅地 | 用途地域 | 第一種住居地域 |
| 建ぺい率 | 60% | 容積率 | 200% |
| 都市計画 | 市街化区域 | 接道 | 道路幅員:南東側5.8m接道:11.2m 道路幅員:北東側5.7m接道11.52m |
| 取引形態 | 売主 | 引き渡し | 2026年5月末頃完成予定 |
| 仲介手数料 | 不要 | 設備 | |
| 延床面積 | 103.50㎡(31.30坪) | 竣工 | |
| 設計 | アイレストホーム | 施工 | アイレストホーム |
| 構造・階数 | 木造2階建て | 築年数 | |
| 備考 | 第R07認広建セ01327号 | ||





















